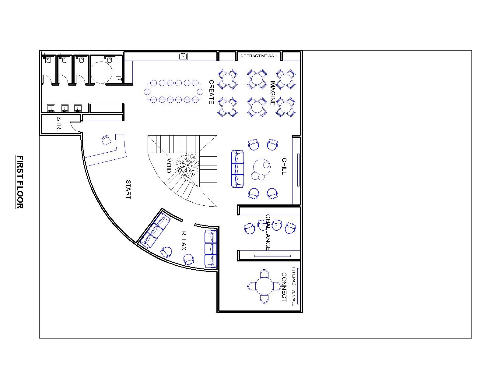
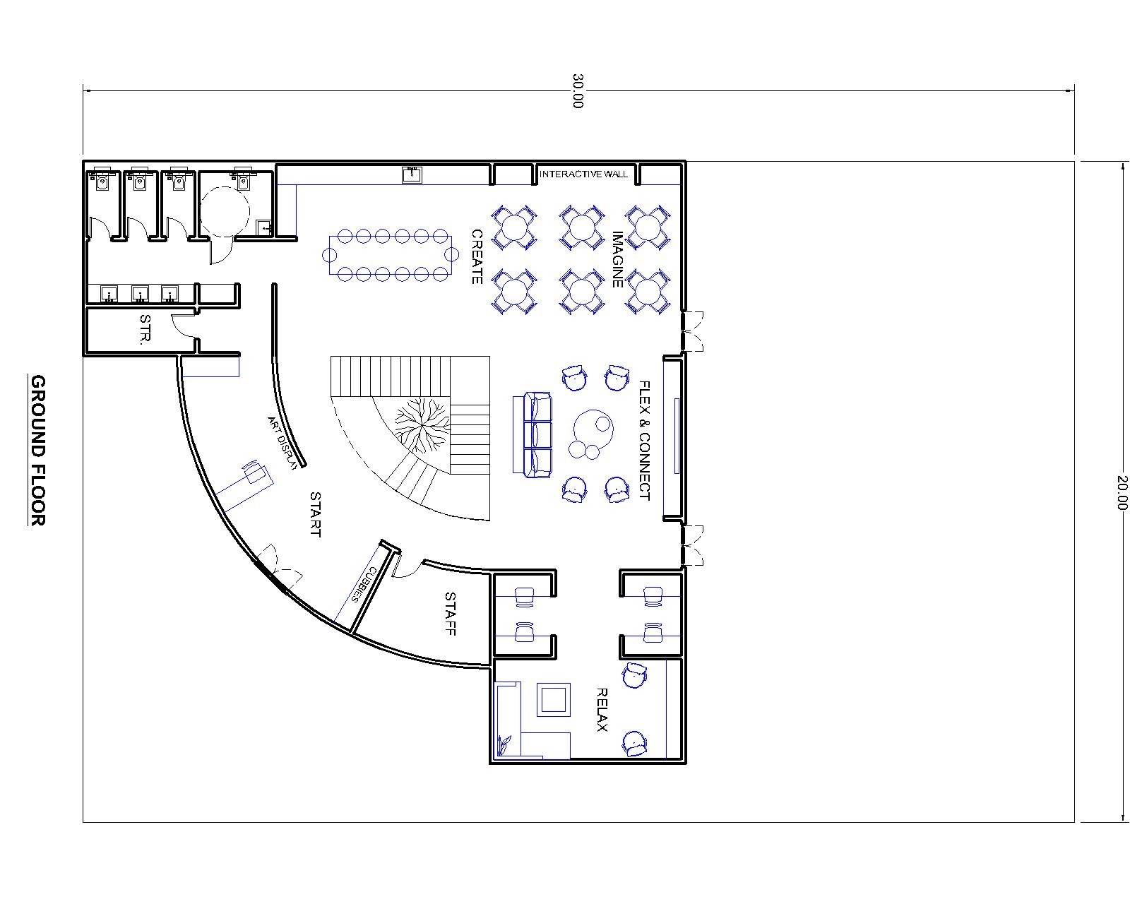
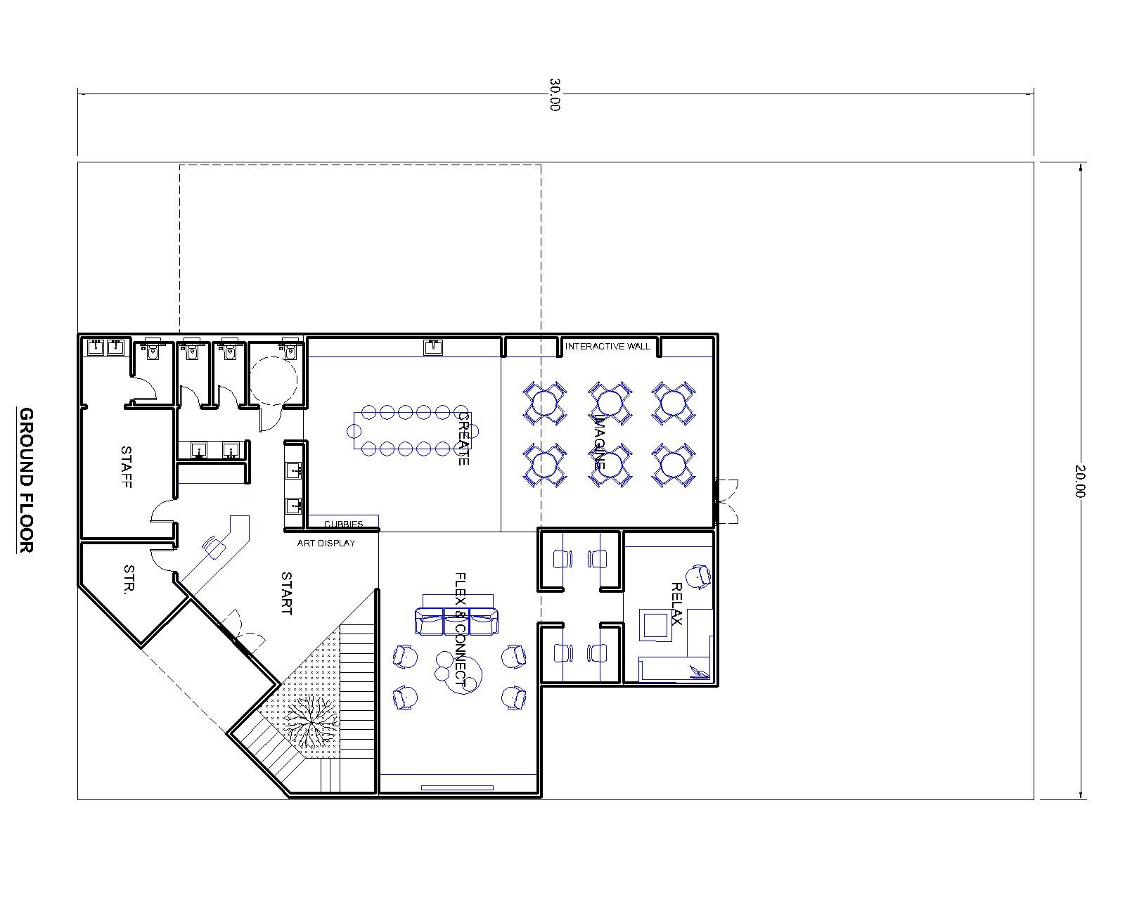
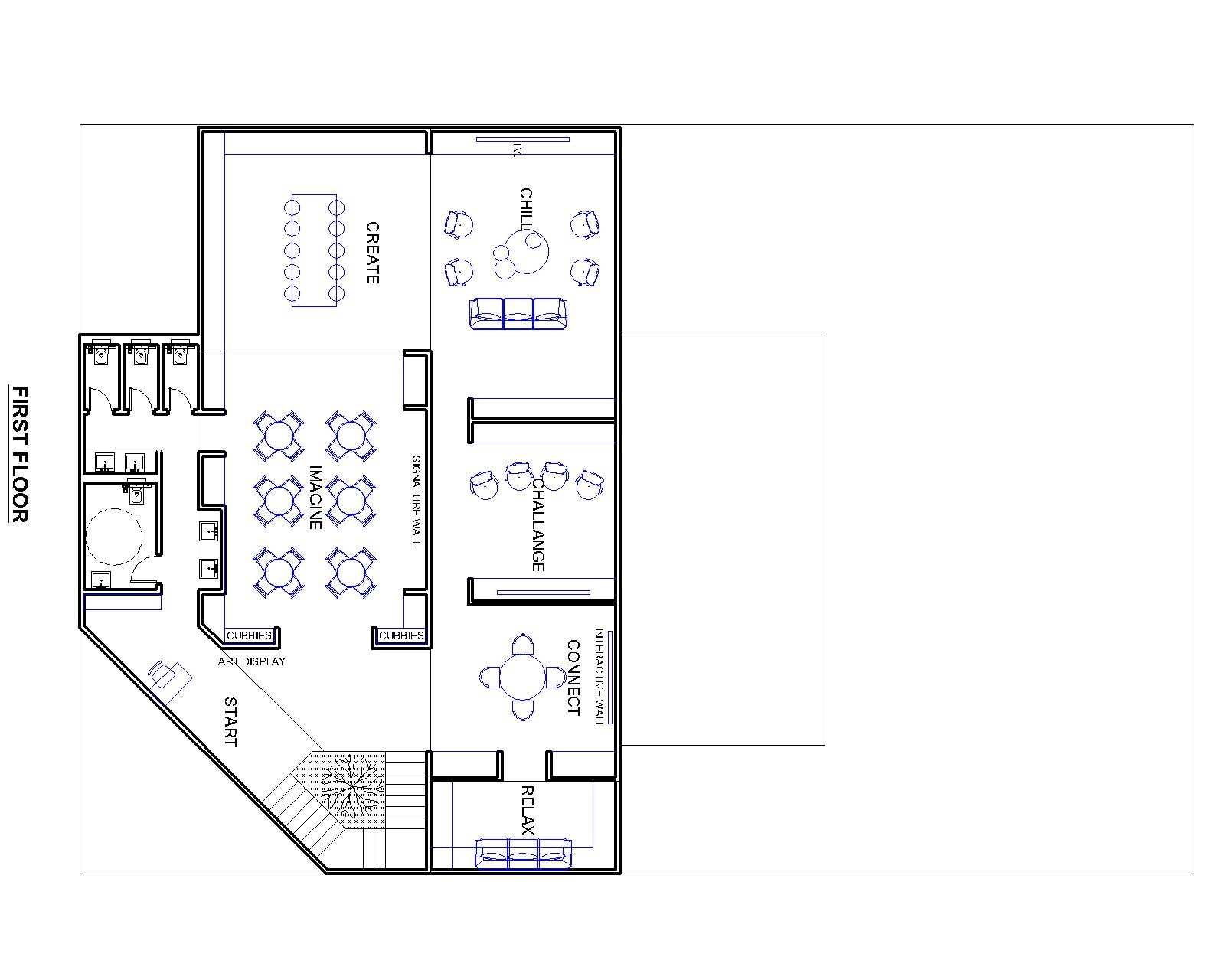
HILTON KIDS CLUB
مساحة نابضة بالحياة وجذابة للأطفال في دولة الإمارات العربية المتحدة، مصممة لمجموعة هيلتون بألوان مرحة ومواد آمنة ومناطق تفاعلية تشجع على الإبداع والاستكشاف الممتع.
مساحة نابضة بالحياة وجذابة للأطفال في دولة الإمارات العربية المتحدة، مصممة لمجموعة هيلتون بألوان مرحة ومواد آمنة ومناطق تفاعلية تشجع على الإبداع والاستكشاف الممتع.